1003:中古マンション 宇野ポート502
| 価格 | 1,180万円 |
|---|---|
| 所在地 | 玉野市宇野1-20-1 |
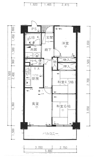
| 間取 | 3LDK |
| 土地面積 | |
| 建物面積 | 60.92m²(18.42坪) |
| 私道面積 | |
| 築年月 | 1992/03 |
| 学区 | 小学校区:宇野 中学校区:宇野 |
| 建物構造 | 鉄筋コンクリート造 |
|---|---|
| 階建 | 地上7階建 |
| 建ぺい率 | 60% |
| 容積率 | 200% |
| 地目 | 宅地 |
| 用途地域 | 準工業地域 |
| 土地権利 | 所有権 |
| 取引態様 | 仲介 |
| 引渡時期 | 相談 |
| セットバック | |
|---|---|
| 接道 | 東 8m(幅員) 公道 北 6m(幅員) 公道 |
| 諸費用 | |
| 他法条例 | |
| 建築確認番号 | |
| 取引条件有効期限 | 令和07年12月11日 |
特色
オーシャンビュー、宇野ポート5階502号室、公営水道、公共本下水、プロパンガス、市街地につき生活便利、宇野駅まで徒歩約15分、管理費8,200円/月、修繕積立金11,400円/月、駐車料別途要
コメント
オーシャンビュー、宇野ポート5階502号室、公営水道、公共本下水、プロパンガス、市街地につき生活便利、宇野駅まで徒歩約15分、管理費8,200円/月、修繕積立金11,400円/月、駐車料別途要


















